Uzundere Meydan Projesi başlıyor
Geçmişi yüzlerce yıl öncesine dayanan Uzundere Köyü’nün meydanıyla çevresinin düzenlenmesine başlanıyor. Karabağlar Belediyesi bu kapsamda yüklenici firmaya yer teslimini yaptı. İlk kazma önümüzdeki günlerde vurulacak.
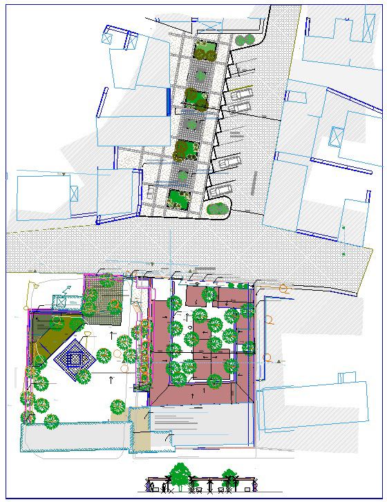
Proje kapsamında 1670 metrekare yüzölçümündeki köy meydanıyla, kütüphane, muhtarlık ve spor kulübü binalarının bulunduğu alan baştan sona elden geçirilecek. Burada dinlenme alanları, sosyal aktivite alanları, çocuk oyun ve yetişkin spor alanları yapılacak. Ayrıca, köydeki üretici kadınların öncülüğünde perşembe günleri kurulan pazaryerindeki tezgâhlar da düzenlenecek. Satış yerlerinin üzeri kapatılacak.
Karabağlar Belediye Başkanı Muhittin Selvitopu, Kavacık ve Tırazlı’yla birlikte Karabağlar’ın 3 köyünden biri olan Uzundere’nin değerlerine sahip çıkacaklarını belirterek, “Köydeki kadınlar öncülüğünde her perşembe kurulan yöresel ürün pazarı yoğun ilgi görüyor. Meydan projemizle birlikte bu pazaryerini de baştan sona elden geçireceğiz. Çalışmalar tamamlandığı Uzundere Meydanı yeni ve modern bir görünüme kavuşacak” dedi.
Dokuz Eylül Üniversitesi Mimarlık Fakültesi’yle birlikte Uzundere Kentsel Tasarım Projesi’ de hazırladıklarını vurgulayan Başkan Selvitopu, “Yüzlerce yıllık tarihe sahip bu köyümüzün zenginliklerini korumaya ve geleceğe taşımaya kararlıyız” diye konuştu.







YORUMLAR