Karşıyaka'ya 19.12 müjdesi
Karşıyaka taraftarlarının yıllardır kulübün kuruluş yılı olan 1912'ye ithafen Dünya Karşıyakalılar Günü olarak kutladığı 19 Aralık'ta yeşil-kırmızılılara yeni tesislerle ilgili müjde geldi.
21 Aralık 2022 - 01:02 - Güncelleme: 21 Aralık 2022 - 01:03
AK Parti Genel Başkan Yardımcısı ve İzmir Milletvekili Hamza Dağ, Karşıyaka Başkanı Turgay Büyükkarcı'yla birlikte 19.12'de kulübün sosyal medya hesaplarında katıldığı canlı yayında Mavişehir'deki Millet Bahçesi olarak planlanan alanı Karşıyaka Spor Kulübü'ne kazandıracaklarını söyledi. Spor alanı imarlı 99 bin 520 metrekarelik paha biçilmez araziye 11 yıl önce ilk olarak stat projesi geliştiren, 2.5 yıl önce de İzmir Spor Kulüpleri Birliği Vakfı'yla (İZVAK) birlikte bu alana altyapı tesisi projesi hazırlayan Karşıyaka, alanın tahsisini alacak.
Mavişehir'de Çevre, Şehircilik ve İklim Değişikliği Bakanlığı'na ait olan ve daha önce Millet Bahçesi olarak planlanan alanın, Karşıyaka Spor Kulübü'ne verildiğini belirten Hamza Dağ, "Burası Çevre Şehircilik Bakanlığı'nın uhdesinde. Kulüp başkanımızla birlikte Bakanımız Murat Kurum'la görüştük. Millet Bahçesi ile tesisleri bir arada yapabilir miyiz noktasında bakanlığımız çalıştı ve tesis olarak yapılan bölümün bir kenarında mahallelinin vakit geçireceği park noktasında mutabık kaldık. Bu hafta Çevre Şehircilik Bakanlığı Mekansal Planlama Genel Müdürlüğü ile görüşüp süreci ilerleteceğiz. Burayı Karşıyaka Spor Kulübü'ne kazandıracağız. Dünya Karşıyakalılar Günü'nde Karşıyakalı hemşerilerime müjdem olsun" açıklamasını yaptı.
DAĞ'DAN STAT AÇIKLAMASI
Hamza Dağ, yıllardır yapımı beklenen Karşıyaka Stadı ile ilgili ise "Karşıyaka bizi takip ediyor, bilmelerini istiyorum ki biz İzmir'e 3 stat parolasıyla çıktık. İlk stadımız Karşıyaka'ydı, yapımı noktasında işe başladık ama Göztepe Gürsel Aksel Stadı ve Alsancak Mustafa Denizli Stadı'nı daha önce bitirmek nasip oldu. Biz Karşıyaka Stadı'nın bitmesi noktasında ciddi efor sarf ettik" dedi.
BÜYÜKKARCI'DAN TEŞEKKÜR
Karşıyaka Başkanı Turgay Büyükkarcı ise "Hamza Dağ başkanımıza büyük teşekkür borçluyum. Projenin ilk günüden beri, proje olmaza gittiğinde de bize büyük destek verdi. Birlikte gezdik bu alanı, Millet Bahçesi projesi vardı. Hamza Dağ şehri iyi bilen biri olarak burada Millet Bahçesi olmayacağını, kulübe verilmesi gerektiğini bakanlığa anlattı. Stat da çok önemli ama bu tesis projesi kulübün geleceğini kurtaracak bir projedir. Kendisine çok teşekkür ediyorum. Sağ olun Hamza Dağ başkanım" diye konuştu.
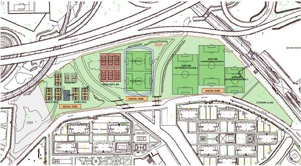
4 SAHA, KORTLAR VE SALONLAR OLACAK
Karşıyaka'nın Çiğli Selçuk Yaşar Tesisleri'ne çok yakın olan Mavişehir'deki tesis projesinde 2'si nizami olmak üzere 4 çim saha, tenis kortları, basketbol ve voleybol salonları yer alacak. Stat hayaline yıllardır kavuşamayan Karşıyaka, tesis arazi tahsis edildikten sonra projenin onayları ve inşaatı için destek turlarına çıkacak.
Mavişehir'de Çevre, Şehircilik ve İklim Değişikliği Bakanlığı'na ait olan ve daha önce Millet Bahçesi olarak planlanan alanın, Karşıyaka Spor Kulübü'ne verildiğini belirten Hamza Dağ, "Burası Çevre Şehircilik Bakanlığı'nın uhdesinde. Kulüp başkanımızla birlikte Bakanımız Murat Kurum'la görüştük. Millet Bahçesi ile tesisleri bir arada yapabilir miyiz noktasında bakanlığımız çalıştı ve tesis olarak yapılan bölümün bir kenarında mahallelinin vakit geçireceği park noktasında mutabık kaldık. Bu hafta Çevre Şehircilik Bakanlığı Mekansal Planlama Genel Müdürlüğü ile görüşüp süreci ilerleteceğiz. Burayı Karşıyaka Spor Kulübü'ne kazandıracağız. Dünya Karşıyakalılar Günü'nde Karşıyakalı hemşerilerime müjdem olsun" açıklamasını yaptı.
DAĞ'DAN STAT AÇIKLAMASI
Hamza Dağ, yıllardır yapımı beklenen Karşıyaka Stadı ile ilgili ise "Karşıyaka bizi takip ediyor, bilmelerini istiyorum ki biz İzmir'e 3 stat parolasıyla çıktık. İlk stadımız Karşıyaka'ydı, yapımı noktasında işe başladık ama Göztepe Gürsel Aksel Stadı ve Alsancak Mustafa Denizli Stadı'nı daha önce bitirmek nasip oldu. Biz Karşıyaka Stadı'nın bitmesi noktasında ciddi efor sarf ettik" dedi.
BÜYÜKKARCI'DAN TEŞEKKÜR
Karşıyaka Başkanı Turgay Büyükkarcı ise "Hamza Dağ başkanımıza büyük teşekkür borçluyum. Projenin ilk günüden beri, proje olmaza gittiğinde de bize büyük destek verdi. Birlikte gezdik bu alanı, Millet Bahçesi projesi vardı. Hamza Dağ şehri iyi bilen biri olarak burada Millet Bahçesi olmayacağını, kulübe verilmesi gerektiğini bakanlığa anlattı. Stat da çok önemli ama bu tesis projesi kulübün geleceğini kurtaracak bir projedir. Kendisine çok teşekkür ediyorum. Sağ olun Hamza Dağ başkanım" diye konuştu.
4 SAHA, KORTLAR VE SALONLAR OLACAK
Karşıyaka'nın Çiğli Selçuk Yaşar Tesisleri'ne çok yakın olan Mavişehir'deki tesis projesinde 2'si nizami olmak üzere 4 çim saha, tenis kortları, basketbol ve voleybol salonları yer alacak. Stat hayaline yıllardır kavuşamayan Karşıyaka, tesis arazi tahsis edildikten sonra projenin onayları ve inşaatı için destek turlarına çıkacak.







YORUMLAR